Moderne Businesswohnung
Miete inkl. Nebenkosten: 1.900 € pro Monat, inkl. Strom, inkl. Internet, inkl. Heizung
Miete inkl. Nebenkosten: 1.900 € pro Monat, inkl. Strom, inkl. Internet, inkl. Heizung
-
Objektnummer: 18275
Gepflegtes Mehrfamilienhaus mit Innenhof -
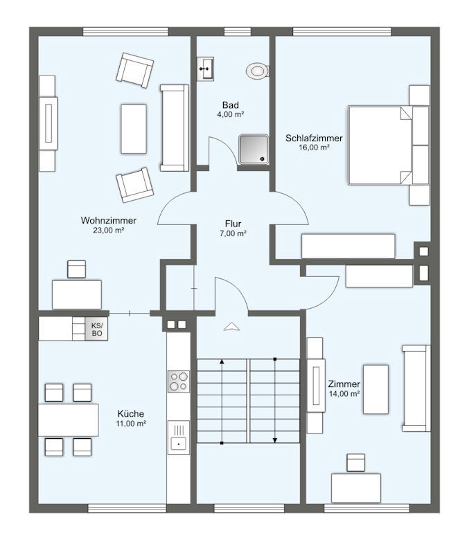
- Wohnfläche: 75 m²
- Zimmer insgesamt: 3
- Kaution: 2 Monatsmieten
- Endreinigung: nach Absprache
- Bezugsfrei ab: 15.03.2026
- Etagen: 2
- Etage: 1
- Mind. Mietzeit (Monate): 6
- Max. Personen: 3
- Stell-/Parkplätze: 1
Zustand & Erschließung
- Baujahr: 1970
Sonstiges
Wohnzimmer, großzügiger Essbereich in der Wohnküche, Schlafzimmer mit Boxspringbett 1,60 m, Gäste-/Arbeitszimmer mit komfortabler Schlafcouch 1,20 m, Bettwäsche und Handtücher vorhanden, inkl. WLAN-Internetanschluss. Garagenstellplatz ca. 250 m entfernt gegen Aufpreis optional, Tierhaltung nach Absprache, Mietpreis gilt für 2 Personen bei Mehrpersonenbelegung, Miete auf Anfrage, Mindestmietdauer 6 Monate
Miete inkl. Nebenkosten: 1.900,00 Euro pro Monat, inkl. Strom, inkl. Heizung, plus 250 Euro Endreinigung- Nichtraucher-Immobilie: ja
-
Neue, moderne Möblierung von 2017, Holz- und PVC-Boden (in Zementoptik), Einbauküche mit Mikrowelle, Duschbad mit Tageslicht, WLAN-Internetanschluss,
separater Hauswirtschaftsraum mit Waschmaschine, Trockner, Bügeleisen und Bügelbrett im Keller (alleinige Nutzung durch den Mieter) -
-
- Energieausweis-Art: Bedarf
- Energieausweis gültig bis: 30.11.2032
- Endenergiebedarf: 139,80 kWh/(m²*a)
- Primärenergieträger: Gas
- Energieeffizienzklasse: E
- Baujahr (Energieausweis): 2020
- Energieausweis-Jahrgang: ab Mai 2014
- Energieausweis-Gebäudeart: Wohngebäude
-
Köln-Ossendorf: beliebter linksrheinischer Stadtteil mit sehr guter Infrastruktur, alle Geschäfte des täglichen Bedarfs sind in unmittelbarer Nähe zu finden. Diverse Schulen, z.B. die Montessorischule, sind fußläufig erreichbar, für Erholung sorgen u.a. Ossendorfbad und Rochuspark. Besonders attraktiv durch die unmittelbare Nähe zu Unternehmen wie Siemens, Coca Cola, Endemol und NetCologne. Das Coloneum liegt ebenfalls in Ossendorf. Sehr gute Anbindung an das öffentliche Verkehrsnetz, S-Bahn-Haltestelle Margaretastraße 100 m entfernt (16 Minuten Fahrtzeit zum Hauptbahnhof Köln).
-
- Warmmiete: 1.900 €
- Heizkosten in Warmmiete enthalten: ja
- Gesamtkosten: 1.900 €
- Außenstellplatzmiete: 45 €
















